Nguyên tắc chọn kích thước tiết diện bê tông cốt thép
Trước khi bắt tay vào tính toán kết cấu bê tông cốt thép, việc đầu tiên chúng ta cần làm là chọn kích thước tiết diện sơ bộ cho các đối tượng kết cấu trong công trình được tính toán. Vậy nguyên tắc chọn kích thước tiết diện này ra sao, sau đây tôi sẽ đưa ra 3 yếu tố then chốt bạn cần phải tuân thủ khi chọn tiết diện sơ bộ.


Đánh giá sự hợp lý của kích thước tiết diện đã chọn dựa vào tỉ lệ cốt thép.
- Tỉ lệ cốt thép mà tôi muốn nhắc tới ở đây chính là μ=As/A
- Với As: Là diện tích cốt thép , A: Là diện tích tiết diện
- Khi đã chọn được tiết diện sơ bộ cho kết cấu, và tính toán ra cốt thép cho cấu kiện kết cấu. Việc tiếp theo là ta cần tính được tỉ lệ cốt thép μ của cấu kiện kết cấu đó rồi đem so sánh với khoảng hợp lí. Tức là μ tính ra phải thỏa mãn điều kiện
- Vì nếu tính được μ quá bé chứng tỏ kích thước tiết diện là quá lớn so với yêu cầu về khả năng chịu lực, và ngược lại nếu tính được μ quá lớn thì chứng tỏ kích thước tiết diện lại quá bé so với yêu cầu khả năng chịu lực. Do đó μ phải nằm trong khoảng hợp lý
- Với mỗi loại cấu kiện kết cấu lại có khoảng μ hợp lý riêng, để biết được chính xác thông số này bạn hãy tìm các bài viết về tính toán kết cấu như cột, dầm, sàn,..
Yếu tố thẩm mỹ của kích thước tiết diện bê tông cốt thép
Bạn cần phải kết hợp bản vẽ kết cấu với bản vẽ kiến trúc để đưa ra phương án kích thước tiết diện tối ưu nhất sao cho vừa đủ khả năng chịu lực lại vừa có tính thẩm mỹ phù hợp với phương án kiến trúc đưa ra

Yếu tố về điều điện thi công khi chọn kích thước tiết diện bê tông cốt thép

- Bạn cần phải chọn kích thước tiết diện sao cho việc chế tạo và thống nhất hóa ván khuôn, thuận tiện cho việc đặt cốt thép và bê tông.
- Thông thường chọn chiều dày của bản và tường là bội số của 1 hoặc 2cm
- Chọn kích thước tiết diện dầm và cột theo bội số của 2;5 hoặc 10cm
Nguyên tắc cấu tạo về khung và lưới cốt thép
Cốt thép đặt vào trong kết cấu không để rời từng thanh mà phải liên kết chúng lại thành khung hoặc lưới
Khung gồm các cốt thép dọc và cốt thép ngang, được dùng trong các dầm và cột

Lưới gồm các cốt thép đặt theo 2 phương vuông góc với nhau, được dùng trong bản sàn và tường.

Tại chỗ giao nhau giữa các cốt thép trong khung và lưới có thể được liên kết bằng buộc và hàn.
Khung và lưới buộc tạo nên bằng các thanh rời, dùng dây thép mềm (Ø0,8-Ø1) buộc chặt các nút.

Ưu điểm của phương pháp buộc là có thể bố trí cốt thép một cách linh hoạt, phù hợp với sự chịu lực của kết cấu. Do đó cốt thép được sử dụng một cách hợp lý, tiết kiệm. Nhưng nhược điểm là thi công chậm.
Để khắc phục nhược điểm trên của phương pháp buộc, người ta đã chế tạo ra phương pháp hàn bằng cách các khung và lưới hàn được chế tạo trong các cơ sở chuyên dụng bằng cách hàn điểm tiếp xúc chỗ cốt thép giao nhau.
Cốt thép chịu lực và cốt thép cấu tạo
Cốt thép trong khung và lưới tùy theo vai trò và nhiệm vụ của nó, sẽ được phân ra làm 2 loại: Cốt thép chịu lực và cốt thép cấu tạo

Cốt thép chịu lực hay còn có tên gọi khác là cốt thép tính toán, cốt thép này dùng để chịu các ứng lực phát sinh do tác dụng của tải trọng, chúng được xác định hoặc kiểm tra bằng tính toán
Cốt thép cấu tạo được đặt vào kết cấu với nhiều tác dụng khác nhau:
- Để liên kết cốt thép chịu lực thành khung hoặc lưới
- Để giữ vị trí cốt thép chịu lực khi thi công
- Để làm giảm co ngót không đều của bê tông
- Để chịu ứng suất do nhiệt độ thay đổi
- Để ngăn cản sự mở rộng của các vết nứt
- Để làm phân bố tác dụng của tải trọng tập trung,…
Thực tế cốt thép cấu tạo cũng chịu lực nhưng chúng không được tính toán mà được đặt theo các quy định và kinh nghiệm.
Lớp bảo vệ cốt thép
Lớp bê tông bảo vệ cốt thép được tính từ mép ngoài bê tông đến mép ngoài gần nhất của cốt thép.
Lớp bảo vệ có tác dụng để đảm bảo sự làm việc đồng thời của cốt thép và bê tông trong mọi giai đoạn, cũng như bảo vệ cốt thép khỏi tác động của không khí, nhiệt độ và các tác động tương tự.
Hai loại lớp bảo vệ cốt thép bạn cần phải phân biệt rõ
- Lớp bảo vệ của cốt thép dọc chịu lực C2
- Lớp bảo vệ của cốt thép cấu tạo, cốt thép đai C1

Quy định cho lớp bảo vệ của cốt thép
Trong mọi trường hợp chiều dày của lớp bảo vệ không được bé hơn đường kính cốt thép quy định ( C >= D )
Ngoài ra chiều dày lớp bảo vệ cốt thép không được bé hơn trị số Co với quy định như sau:
Với cốt thép chịu lực
Trong bản và tường có chiều dày:
Từ 100mm trở xuống: Co=10mm ( 15mm )
Trên 100mm trở lên: Co=15mm (20mm)
Trong dầm và sườn có chiều cao:
Nhỏ hơn 250mm: Co=15mm ( 20mm )
Lớn hơn hoặc bằng 250mm: Co=20mm (25mm)
Trong cột: Co=20mm (25mm)
Trong dầm móng: Co= 30mm
Trong móng:
Lắp ghép: Co=30mm
Toàn khối khi có bê tông lót: Co=35mm
Toàn khối khi không có bê tông lót: Co=70mm
Với cốt thép cấu tạo, cốt thép đai
Khi chiều cao tiết diện h<20mm thì Co=10mm (15mm)
Khi chiều cao tiết diện h>=250mm thì Co=15mm (20mm)
Chú ý
Giá trị trong ngoặc (…) áp dụng cho kết cấu ngoài trời hoặc những nơi ẩm ướt
Đối với những kết cấu chịu ảnh hưởng của môi trường biển ( nước mặn ) cần tăng chiều dày theo TCVN 327-2004
Đối với những kết cấu trong môi trường xâm thực mạnh cần phải có thêm lớp ốp hoặc các biện pháp bảo vệ đặc biệt
Khoảng hở của cốt thép
Mục đích của cốt thép được đặt với khoảng hở t đủ rộng là để vữa bê tông có thể dễ dàng lọt qua và để cho xung quanh mỗi cốt thép có được 1 lớp bê tông đủ đảm bảo điều kiện về lực dính bám.
Theo tiêu chuẩn BTCT hiện hành có quy định khoảng hở t >=(Ømax;to)
Khi cốt thép có vị trí nằm ngang hoặc xiên lúc đổ bê tông
- Với cốt thép đặt dưới: to=25mm
- Với cốt thép đặt trên: to=30mm
- Khi cốt thép được đặt nhiều hơn hai lớp thì với các lớp phía trên to=50mm ( trừ hai lớp dưới cùng )
- Nếu dùng đầm dùi để đầm chắc bê tông thì khoảng hở t ở lớp bên trên cần đảm bảo để dầm lọt qua được

Khi cốt thép đặt thẳng đứng lúc đổ bê tông
- Với trường hợp này to=50mm
- Nếu có kiểm soát một cách hệ thống kích thước cốt liệu thì có thể giảm to đến 35mm nhưng không được nhỏ hơn 1,5 lần kích thước lớn nhất của cốt liệu thô

Trường hợp đặc biệt
- Trường hợp đặc biệt là trường hợp cho phép bố trí các thanh cốt thép theo cặp, không có khe hở giữa chúng
- Phương pháp ghép cặp phải theo phương chuyển động của vữa bê tông và khoảng hở yêu cầu t>=1,5Ø

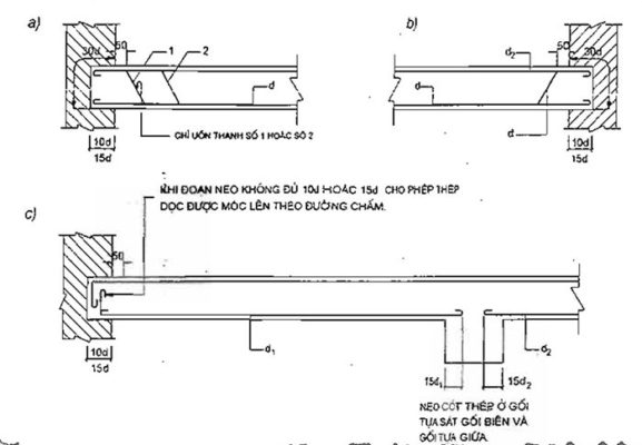
Neo cốt thép
Mục đích của neo cốt thép là phát huy được khả năng chịu lực do cốt thép được neo chắc vào bê tông ở vùng liên kết hay gối tựa
Các phương pháp neo cốt thép:
- Neo thẳng
- Neo kiểu uốn móc gập với góc α=45-90 độ

- Neo kiểu móc neo tiêu chuẩn ( móc hình chữ U )

Đoạn neo cốt thép kể từ mút thanh đến tiết diện vuông góc với trục dọc cấu kiện mà ở đó nó được sử dụng toàn bộ khả năng chịu lực ( tính với toàn bộ cường độ tính toán )
- Không được nhỏ hơn giá trị:

- Đồng thời đoạn neo cũng không được nhơ hơn giá trị

- Đồng thời đoạn neo >= lmin
- Các giá trị ở trên cho trong bảng sau:

- Trong trường hợp vùng để neo cốt thép không đủ để đặt đoạn neo theo yêu cầu trên thì có thể dùng biện pháp neo bổ trợ như hàn vào đầu mút thanh các bản neo. Lúc này bản neo cần được tính toán theo sự chịu lực cục bộ và chiều dài đoạn neo cũng không được nhỏ hơn 10.Ø
- Ví dụ về quy định neo cốt thép dọc cho dầm



Nối cốt thép xảy ra trong trường hợp khi chiều dài thanh thép không đủ hoặc nếu dùng thành thép dài quá sẽ trở ngại cho thi công ( khi phải dựng đứng thanh thép )
Các phương pháp nối cốt thép
- Nối hàn
- Nối buộc
- Nối bằng ống lồng
Quy định khi nối cốt thép bằng phương pháp hàn
Hai cách hàn phổ biến hiện này được dùng để nối cốc thép đó là
- Hàn tiếp xúc: Được hàn bằng cách dùng các máy hàn chuyên dụng, dùng để nối dài các thanh có đường kính trên 10mm và tỉ lệ đường kính của hai thanh không nhỏ hơn 0,85mm

Hàn hồ quang: Được hàn bằng cách dùng dòng điện cường độ lớn nung chảy kim loại của que hàn và thép cần hàn để chúng liên kết với nhau. Có thể dùng thanh kẹp hoặc không dùng trong khi hàn bằng phương pháp này
- Khi hàn hồ quang dùng thanh kẹp có thể thực hiện với bốn đường hàn ở hai bên hoặc 2 đường hàn ở một bên

- Khi hàn hồ quang không dùng thanh kẹp cần uốn đầu cốt thép rồi ghép chồng lên nhau sao cho trục hai thanh được nối thẳng hàng

- Hàn hồ quang đối đầu thường dùng cho những thanh thép đường kính lớn và cần dùng 1 máng để lót

Kích thước của đường hàn được quy định như sau:
- Chiều dày (hay còn gọi là chiều cao Hh): Được lấy bằng 1/4 đường kính cốt thép nhưng không dưới 4mm.
- Bề rộng: Được lấy bằng 1/2 đường kính cốt thép nhưng không dưới 10mm.
- Chiều dài đường hàn Lh: Được xác định bằng thực nghiệm để đảm bảo khẳ năng chịu lực ( theo phương pháp tính toán liên kết hàn ) những cũng không được nhỏ hơn
- Lmin=4.Ø khi dùng thanh kẹp hàn hai bên
- Lmin=5.Ø khi không dùng thanh kẹp, hàn hai bên
- Lmin=8.Ø hoặc 10.Ø khi chỉ hàn một bên
Quy định khi nối cốt thép bằng phương pháp nối chồng ( nối buộc )
Nối chồng là cách đặt hai đầu cốt thép chập vào nhau một đoạn Lan và dùng dây thép mềm buộc lại

Tác dụng của cách nối này là lực từ thanh 1 được truyền vào bê tông nhờ lực bám dính rồi lại từ bê tông truyền vòa thanh thép 2.
Như vậy trong phạm vi nối chồng bê tông phải làm việc nhiều hơn và phức tạp hơn ở vị trí khác, chính vì lý do đó trong phạm vi đó phải tăng cường cốt thép đai và khi thi công phải chú ý đảm bảo chất lượng của bê tông
Không được dùng phương pháp nối chồng với các thanh thép có đường kinh Ø>30mm
Không nên nối chồng trong vùng chịu kéo của cấu kiện chịu uốn và nén, kéo lệch tâm tại những nơi cốt thép được dùng hết khả năng chịu lực
Không được dùng phương pháp nối chồng trong những cấu kiện thẳng mà toàn bộ tiết diện chịu kéo cũng như trong mọi trường hợp sử dụng cốt thép nhóm CIV trở lên.
Chiều dài đoạn chập lên nhau của mối nối chồng là Lan lấy theo công thức

Đầu mút của cốt thép tròn, trơn, chịu kéo trong khung và lưới buộc nên được uốn móc
Quy định khi nối cốt thép bằng phương pháp nối bằng ống lồng.
Cách nối của phương pháp này là đút hai thanh thép cần nối vào một ống bằng thép. Liên kết giữa thanh cốt thép và ống lồng có thể bằng cách dùng máy ép bóp chặt ống vào cốt thép để tạo ma sát, dùng liên kết ren hoặc keo.
Lực từ thanh cốt thép này truyền vào ống lồng rồi từ ống lồng truyền vào thanh cố thép kia.
Xem thêm TCXD 234-1999 để hiểu thêm về phương pháp này




